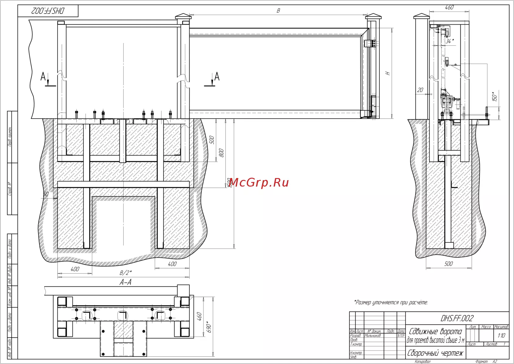
DoorHan Ворота серии Premium Чертеж - Ворота сдвижные для проемов высотой более 3 м онлайн

34*
1500
500
B/2*
460
800
А А
А-А
460
690*
150*
500
20
B
H
50
400
400
*Размер уточняется при расчёте.
Масса Масштаб
Изм.
Лист
№ докум. Подп.
Дата
Лит.
Разраб.
Пров.
Т.контр. Лист Листов
Н.контр.
Утв.
DHS.FF.002
Сдвижные ворота
для проемов высотой свыше 3 м
Мильников
1:10
16.11.09
Сборочный чертеж
1
Инв. № подл. Подп. и дата Взам. инв. № Инв. № дубл. Подп. и дата Справ. № Перв. примен.
DHS.FF.002
Копировал Формат A2
Содержание
Похожие устройства
-
DoorHan Ворота серии PremiumИнструкция по сборке и монтажу -
DoorHan Ворота серии PremiumИнструкция по сборке универсальной рамы -
DoorHan Ворота серии PremiumИнструкция по эксплуатации -
DoorHan Ворота серии PremiumЧертеж - Ворота сдвижные (общий вид) -
DoorHan Ворота серии PremiumЧертеж - Ворота сдвижные для проемов высотой до 3 м -
DoorHan Ворота серии PremiumЧертеж - Ворота сдвижные с арочным типом щита и с пиками -
DoorHan Ворота серии PremiumЧертеж - Ворота сдвижные с окнами и калитками -
DoorHan Ворота серии PremiumЧертеж - Фрагменты -
DoorHan Раздвижные уличные ворота из сэндвич-панелейИнструкция по сборке и монтажу -
DoorHan Раздвижные уличные ворота из сэндвич-панелейИнструкция по сборке универсальной рамы -
DoorHan Раздвижные уличные ворота из сэндвич-панелейИнструкция по эксплуатации -
DoorHan Раздвижные уличные ворота из сэндвич-панелейЧертеж - Ворота сдвижные для проемов высотой более 3 м