Brother HE-800B-03 — установка и подключение коннекторов на главной плате устройства [19/106]
![Brother HE-800B-03 [19/106] Петли](/views2/1497394/page19/bg13.png)
19
3. Установка
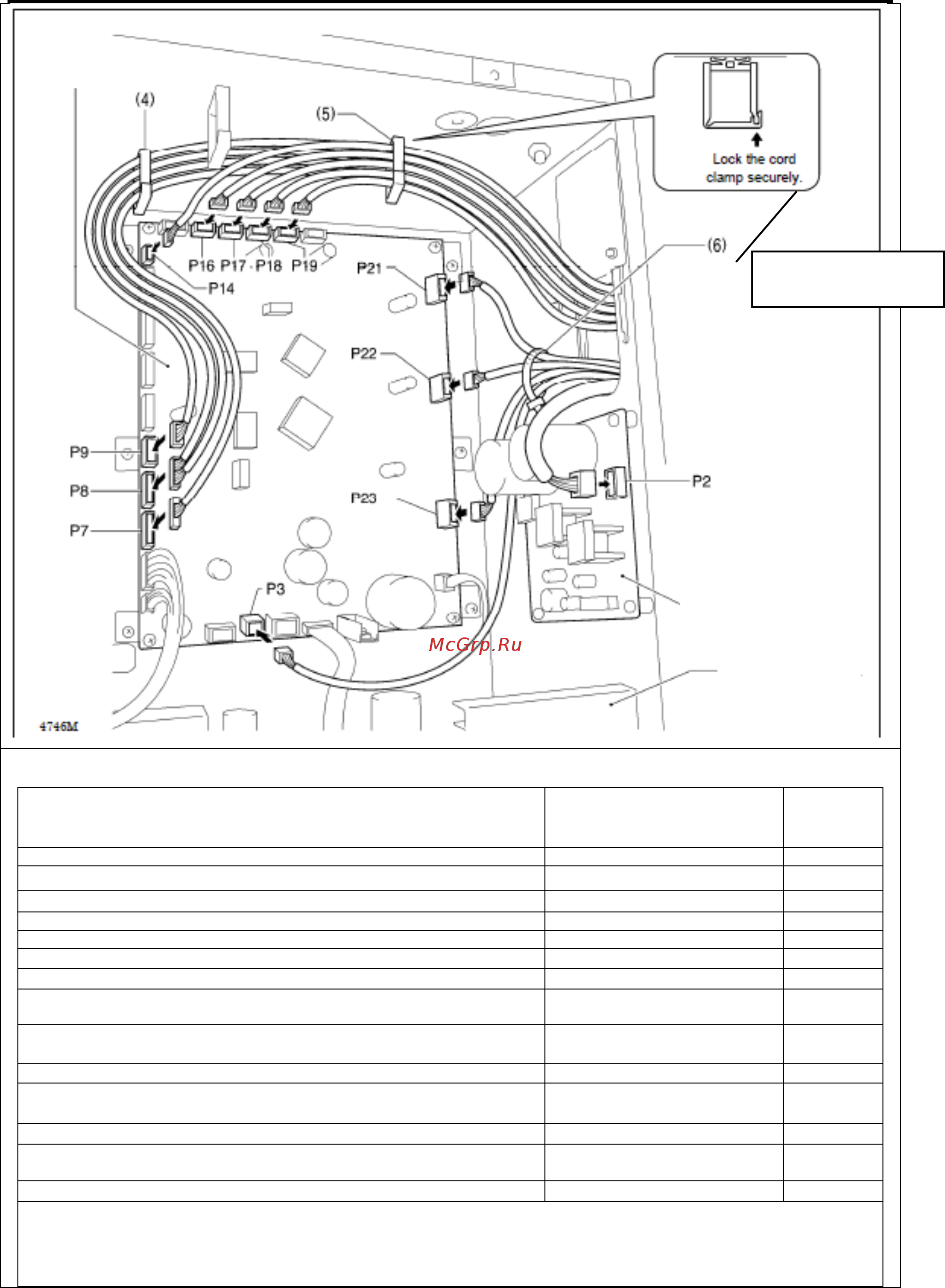
Коннекторы Расположение точки подключения
на главной плате
Кабельный
фиксатор
Датчик ножа прорезки петли, 6-пиновый коннектор
Р7 (SENSOR2)
(4) (5)
Датчик подачи материала, датчик обрыва нити, 12-пиновый коннектор
Р8 (SENSOR1)
(4) (5)
Выключатель (переключатель ОСТАНОВА), 6-пиновый коннектор Р9 (HEAD) (4) (5)
Защитный выключатель, 3-пиновый коннектор
Р14 (HEAD SW)
(5)
Блок памяти, 6-пиновый коннектор
Р16 (HEAD-MEM)
(5)
Датчик, энкодер иглы зигзагообразного стежка, 5-пиновый коннектор, белый Р17 (X-ENC) (5)
Энкодер механизма подачи, 5-пиновый коннектор, синий
Р18 (Y-ENC)
(5)
Датчик лапки (рабочего прижима), энкодер рабочего прижима, 5-пиновый
коннектор, черный
Р19 (Р-ENC)
(5)
Привод (электродвигатель) иглы зигзагообразного стежка, 4-пиновый
коннектор, белый
Р21 (ХРМ)
(6)
Привод (электродвигатель) механизма подачи, 4-пиновый коннектор, синий
Р22 (YРМ)
(6)
Привод (электродвигатель) рабочего прижима, 4-пиновый коннектор, черный
Р23 (РРМ)
(6)
Соленоид отпуска натяжения, 4-пиновый коннектор Р3 (SOL2) (6)
Коннекторы Расположение точки подключения
на плате ножа прорезки петли
Кабельный
фиксатор
Соленоид ножа прорезки петли, 4-пиновый коннектор
Р2 (SOL)
-
Примечание: Кабели (провода) приводов иглы зигзагообразного стежка, механизма подачи и рабочего прижима, а также соленоида
отпуска натяжения должны быть разведены так, чтобы они не касались платы ножа прорезки петли и платы системы питания.
(продолжение на следующей странице)
Надежно закрепите
кабельный фиксатор
Основная плата
Плата ножа прорезки
петли
Плата системы
питания
Содержание
- Руководство по эксплуатации p.1
- He 800b p.1
- Инструкции по технике безопасности p.4
- Предупредительная маркировка p.6
- Изменение настроек счетчика готовых изделий p.8
- Настойка переключающих устройств с блоком памяти пубп p.8
- Перечень настроек пубп p.8
- Содержание p.8
- Сброс данных инициализация p.8
- Изменение настроек счетчика нижней нити p.8
- Установка 3 установка p.13
- 1 установка блока управления p.14
- Установка p.14
- Установка p.16
- 6 установка упора головки машины p.16
- Петли p.19
- Плата ножа прорезки p.19
- Установка p.19
- Установка p.20
- При первой установке машины и после длительного простоя перед началом работы необходимо снять шпульку и капнуть 2 3 капли масла в склиз батана челнока 1 p.25
- 14 3 смазка вращающегося челнока p.25
- 15 подключение кабеля питания p.25
- Подготовка к работе p.33
- 3 намотка нижней нити p.33
- Запрещается прикасаться к подвижным частям или оказывать на машину какое либо физическое воздействие в режиме намотки нижней нити так как это может травмировать вас или повредить оборудование p.33
- Внимание p.33
- Подготовка к работе p.35
- Подготовка к работе p.36
- Эксплуатация швейной машины панель управления основные функции p.45
- Эксплуатация швейной машины панель управления основные функции p.46
- Эксплуатация швейной машины панель управления основные функции p.47
- Эксплуатация швейной машины панель управления основные функции p.48
- Обметочный p.49
- Эксплуатация швейной машины панель управления основные функции p.49
- Бисерный p.49
- Нажмите кнопку copy машина переключиться в режим копирования программ p.54
- Эксплуатация швейной машины панель управления основные функции p.54
- Выберите номер программы назначения копирования 2 p.54
- Выберите номер программы источника копирования 1 p.54
- 8 копирование программ 5 8 копирование программ для создания программы с параметрами практически аналогичными параметрам другой программы вы можете используя функцию копирования оригинальной программы с внесением в нее частичных изменений 1 нажмите одну из нижеперечисленных кнопок вы можете нажать одну из нижеперечисленных кнопок p.54
- Установите педаль нажатием во 2 положение с p.58
- Примечание при нажатии кнопки reset в процессе пробной подачи или по завершению данного процесса игольная планка и рабочий прижим определят исходное положение и вернуться в положение начала процесса шитья p.58
- Эксплуатация швейной машины режим шитья p.58
- Причиной нарушения штатного режима работы машины может быть например неправильная настройка p.66
- Зажав reset установите сетевой переключатель 1 в положение on вкл p.66
- Выход из режима инициализации p.66
- Выполнение инициализации p.66
- Выберите уровень инициализации 2 1 3 p.66
- 3 сброс данных инициализация p.66
- Эксплуатация швейной машины панель управления дополнительные функции p.66
- Уровень инициализации и сбрасываемые или инициализируемые настройки p.66
- Системы выполненная с помощью пупб в таком случае существует возможность восстановления p.66
- Нормальной работы машины способом инициализации данных настройки памяти описанным ниже p.66
- Стандартные настройки p.73
- 1 регулировка высоты игольной планки p.73
- 2 настройка синхронизации иглы и челнока p.74
- Стандартные настройки p.74
- 3 регулировка зазора между иглой и концом челнока p.75
- Стандартные настройки p.75
- 6 регулировка установки ножа прорезки петли p.76
- Стандартные настройки p.76
- Стандартные настройки p.79
- 9 настройка синхронизации зажима нижней нити 9 9 настройка синхронизации зажима нижней нити p.79
- 10 регулировка прижима шпульки p.79
- Таблица кодировки сбоев системы машины p.80
- Если в работе системы произошел сбой машина прозумирует звуковой сигнал и в окне дисплея появиться если в работе системы произошел сбой машина прозумирует звуковой сигнал и в окне дисплея появиться кодовое обозначение сбоя для устранения причины следуйте нижеописанным процедурам p.80
- Перед тем как открыть переднюю крышку блока управления необходимо после отключения питания и отсоединения шнура от розетки подождать как минимум 5 минут прикосновение к токоведущим элементам высокого напряжения может являться причиной серьезной травмы p.80
- Таблица кодировки сбоев системы машины p.81
- Таблица кодировки сбоев системы машины p.82
- Таблица кодировки сбоев системы машины p.83
- Таблица кодировки сбоев системы машины p.84
- Таблица кодировки сбоев системы машины p.85
- Диагностика и устранение неисправностей p.88
- Диагностика и устранение неисправностей p.89
- 3 неравномерные швы 1 в начале процесса шитья 11 3 неравномерные швы 1 в начале процесса шитья позиции с обозначением в графе страница обслуживаются только квалифицированным персоналом p.89
- Диагностика и устранение неисправностей p.90
- 5 неравномерные швы 2 шов поднимается вверх в начале процесса шитья шов поднимается вверх и не натягивается в начале процесса шитья позиции с обозначением в графе страница обслуживаются только квалифицированным персоналом p.90
- 4 неравномерные швы 2 подъем нижней иглы в начале процесса шитья 11 4 неравномерные швы 2 подъем нижней иглы в начале процесса шитья конец нижней нити выступает над швом в начале процесса шитья позиции с обозначением в графе страница обслуживаются только квалифицированным персоналом p.90
- 7 неравномерные швы 5 недостаточное закругление швов позиции с обозначением в графе страница обслуживаются только квалифицированным персоналом p.91
- 6 неравномерные швы 4 неравномерный шаг прокладки стежков в начале процесса шитья 11 6 неравномерные швы 4 неравномерный шаг прокладки стежков в начале процесса шитья образование гнезд в начале процесса шитья и через 5 6 мм следует увеличение шага прокладки стежков позиции с обозначением в графе страница обслуживаются только квалифицированным персоналом p.91
- Диагностика и устранение неисправностей p.91
- 9 неравномерные швы 7 свисание конца нити на конце закрепки p.91
- 8 неравномерные швы 6 вокруг задней или передней закрепки позиции с обозначением в графе страница обслуживаются только квалифицированным персоналом p.91
- Диагностика и устранение неисправностей p.92
- 11 неравномерные швы 9 застревание в игольной пластине участки передней и задней закрепки материала застревают в игольном отверстии позиции с обозначением в графе страница обслуживаются только квалифицированным персоналом p.92
- 10 11 10 неравномерные швы 8 выход нити на конце закрепки позиции с обозначением в графе страница обслуживаются только квалифицированным персоналом p.92
- Продолжение на следующей странице p.94
- Диагностика и устранение неисправностей p.94
- 13 11 13 выбег верхней нити позиции с обозначением в графе страница обслуживаются только квалифицированным персоналом p.94
- Отрегулируйте высоту игольной планки по 1 на измерительном инструменте 2 отрегулируйте синхронизацию иглы и вращающегося челнока по 2 на p.95
- Измерительном инструменте p.95
- Измерительный инструмент входит в комплект опциональных комплектующих p.95
- Диагностика и устранение неисправностей p.95
- Диагностика и устранение неисправностей p.96
- Выполните шлифовку при помощи p.96
- 14 распутывание нити обрезанной сборкой устройства обрезки верхней нити 11 14 распутывание нити обрезанной сборкой устройства обрезки верхней нити позиции с обозначением в графе страница обслуживаются только квалифицированным персоналом p.96
- Шлифовального диска или замените деформированную деталь p.96
- Диагностика и устранение неисправностей p.97
- 15 пропуск обрезки верхней нити 11 15 пропуск обрезки верхней нити позиции с обозначением в графе страница обслуживаются только квалифицированным персоналом p.97
- Продолжение на следующей страницы p.98
- Диагностика и устранение неисправностей p.98
- 16 биение иглы об устройство обрезки верхней нити 11 16 биение иглы об устройство обрезки верхней нити позиции с обозначением в графе страница обслуживаются только квалифицированным персоналом p.98
- Диагностика и устранение неисправностей p.99
- 17 облом иглы позиции с обозначением в графе страница обслуживаются только квалифицированным персоналом p.99
- Диагностика и устранение неисправностей p.100
- 19 ножа не возвращается позиции с обозначением в графе страница обслуживаются только квалифицированным персоналом p.100
- 18 некорректная работа ножа некорректная прорезка материала 11 18 некорректная работа ножа некорректная прорезка материала позиции с обозначением в графе страница обслуживаются только квалифицированным персоналом p.100
- Диагностика и устранение неисправностей p.101
- 21 обрезка шва позиции с обозначением в графе страница обслуживаются только квалифицированным персоналом p.101
- 20 соприкосновение ножа и устройства обрезки верхней нити 11 20 соприкосновение ножа и устройства обрезки верхней нити позиции с обозначением в графе страница обслуживаются только квалифицированным персоналом p.101
- 23 рабочий прижим не поднимается 1 работа шагового электродвигателя не слышна позиции с обозначением в графе страница обслуживаются только квалифицированным персоналом p.102
- 22 пропуск намотки верхней нити 11 22 пропуск намотки верхней нити позиции с обозначением в графе страница обслуживаются только квалифицированным персоналом p.102
- Диагностика и устранение неисправностей p.102
- 24 рабочий прижим не поднимается 2 11 24 рабочий прижим не поднимается 2 слышна работа шагового электродвигателя позиции с обозначением в графе страница обслуживаются только квалифицированным персоналом p.103
- Диагностика и устранение неисправностей p.103
- Диагностика и устранение неисправностей p.104
- 26 подающий механизм не срабатывает или электродвигатель работает асинхронно позиции с обозначением в графе страница обслуживаются только квалифицированным персоналом p.104
- 25 нижняя нить не обрезается натяжка при снятии материала 11 25 нижняя нить не обрезается натяжка при снятии материала позиции с обозначением в графе страница обслуживаются только квалифицированным персоналом p.104
- Диагностика и устранение неисправностей p.105
- 30 зависание дисплея панели управления без возможности выполнения каких либо рабочих операций позиции с обозначением в графе страница обслуживаются только квалифицированным персоналом p.105
- 29 верхний вал не вращается до верхнего крайнего положения иглы позиции с обозначением в графе страница обслуживаются только квалифицированным персоналом p.105
- 28 остановка швейной машины в процессе шитья позиции с обозначением в графе страница обслуживаются только квалифицированным персоналом p.105
- 27 игла не выполняет зигзаг или выполнение зигзага сопровождается шумом 11 27 игла не выполняет зигзаг или выполнение зигзага сопровождается шумом позиции с обозначением в графе страница обслуживаются только квалифицированным персоналом p.105
Похожие устройства
-
Brother RH-9820-01/02Руководство по эксплуатации -
Brother RH-9820-01/02Каталог запчастей -
Brother HE-800B-02Руководство по эксплуатации -
Aurora А-782DИнструкция к блоку управления -
Aurora А-782DИнструкция по эксплуатации -
Aurora А-781DИнструкция к блоку управления -
Aurora А-781DИнструкция по эксплуатации -
Golden Wheel CSH-7830Инструкция по эксплуатации -
Golden Wheel CSH-7820Инструкция по эксплуатации -
Golden Wheel CSH-7800Инструкция по эксплуатации -
Golden Wheel CSH-7800Каталог запчастей -
Aurora A-9820Руководство по эксплуатации
Подробное руководство по установке и подключению коннекторов на главной плате устройства. Узнайте о расположении точек подключения и необходимых мерах безопасности.