Brother RH-9820-01/02 [16/139] Для педали пуска
![Brother RH-9820-01/02 [16/139] Для педали пуска](/views2/1497397/page16/bg10.png)
3. INSTALLATION
RH-9820
5
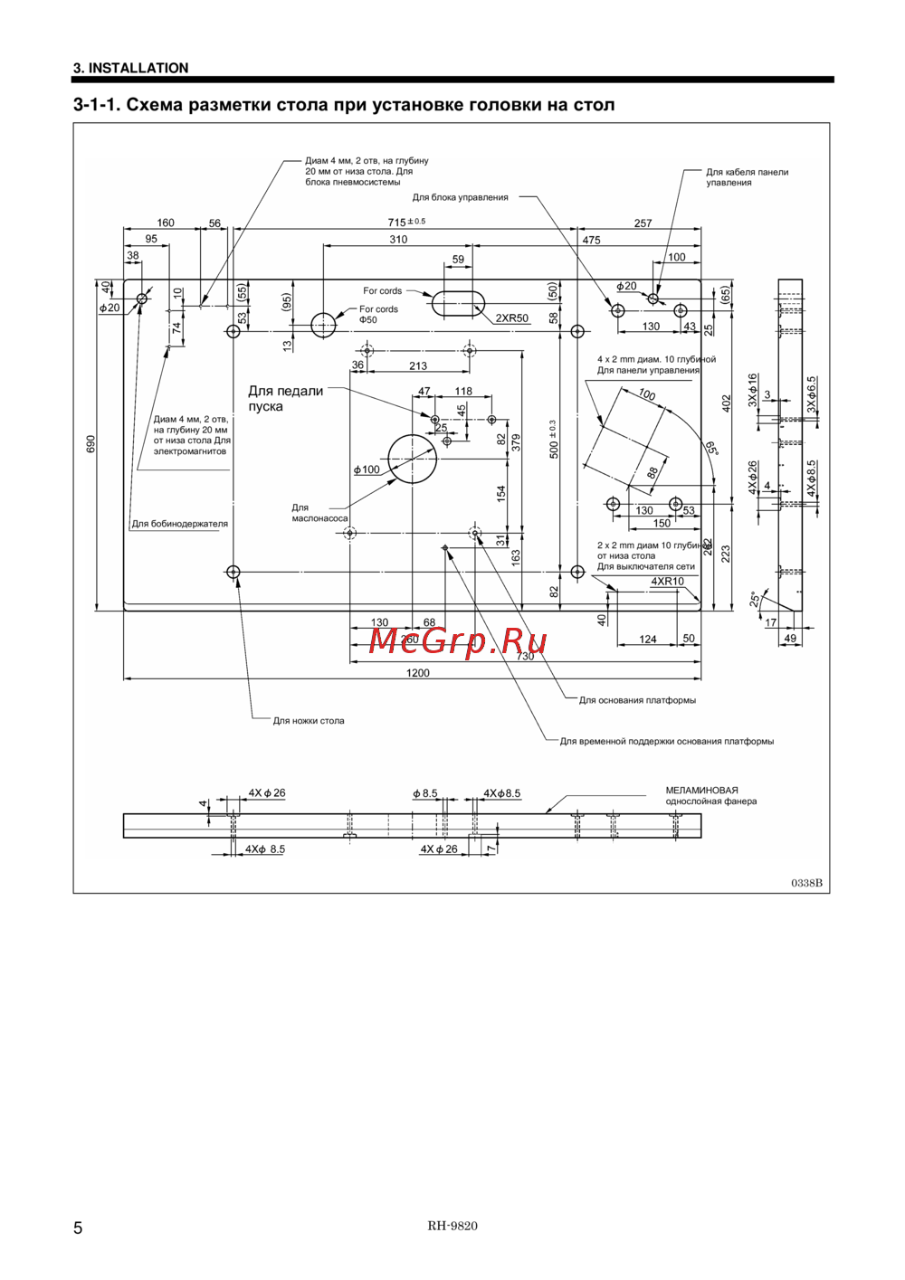
3-1-1. Схема разметки стола при установке головки на стол
0338B
Для блока управления
Диам 4 мм, 2 отв,
на глубину 20 мм
от низа стола Для
электромагнитов
Для бобинодержателя
Диам 4 мм, 2 отв, на глубину
20 мм от низа стола. Для
блока пневмосистемы
For cords
Для педали
пуска
Для ножки стола
Для
маслонасоса
Для основания платформы
Для временной поддержки основания платформы
MЕЛАМИНОВАЯ
однослойная фанера
2 x 2 mm диам 10 глубиной
от низа стола
Для выключателя сети
4 x 2 mm диам. 10 глубиной
Для панели управления
Для кабеля панели
упавления
For cords
Φ50
Содержание
- Инструкция p.1
- Электронное кнопочное управление p.1
- Пользователя p.1
- Rh 9820 p.1
- Надписи p.3
- Danger p.3
- Инструкция по технике безопасности p.3
- Caution p.3
- Требования к окружающей среде p.4
- Монтаж p.4
- Danger опасность p.4
- Caution внимание p.4
- Наладка и осмотр p.5
- Выполнение строчки p.5
- Чистка p.5
- Внимание p.5
- 3 таблички предостережения p.6
- Вот такие таблички могут быть на машине просьба при эксплуатации придерживаться предписаний имеющихся на табличках если табличка потерялась или надпись её не читается обращайтесь к дилеру фирмы brother p.6
- Работа на машине операция выполнения строчки p.8
- Подготовка включения машины p.8
- Содержание p.8
- Работа на швейной машине панель управления автоматизированный способ управления 57 p.8
- Работа на машине панель управления основные операции p.8
- Стандартные регулировки p.10
- Чистка и осмотр p.10
- Наименование основных частей p.12
- Технические данные машины p.13
- 1 параметры спецификации p.13
- 2 конфигурация петли p.14
- Установка машины p.15
- Внимание p.15
- 1 схема разметки стола p.15
- Для педали пуска p.16
- Rh 9820 p.16
- Installation p.16
- 1 1 схема разметки стола при установке головки на стол p.16
- 1 2 разметка стола когда платформа машины в него встроена p.17
- Внимание p.18
- 2 установка блока управления p.18
- 3 установка уголков усиления стола только для встроенной в стол головки p.19
- 4 установка головки машины p.19
- 4 1 установка на стол сверху p.19
- Внимание p.20
- 4 2 монтаж головки в стол p.21
- Внимание p.22
- 5 поворот и возврат головки в исходное положение p.22
- 7 установка маслёнки p.23
- 6 установка ограждения ремённой передачи и ограждения подвижной платформы p.23
- 9 установка бобинодержателя p.24
- 8 установка панели управления p.24
- 9 установка пневмосистемы и блока электромагнитных клапанов p.25
- 10 installing the 2 pedal foot switch 3 11 3 12 использование двухпедального пуска 3 13 1 p.25
- 14 установка единичной педали пуска p.26
- 14 2 когда головка встроена в стол p.26
- 14 1 когда головка установлена на столе p.26
- 15 установка устройства пуска вручную p.28
- Подсоединить контакты как указано на рисунке и перейти на стр 19 и 20 примечание p.30
- 16 проводка шнуров p.30
- 16 1 контакты внутри блока управления p.30
- Внимание p.34
- 16 2 подключение заземления p.34
- 16 3 подключение силового шнура p.35
- Внимание p.36
- 16 5 крепление шлангов p.36
- 16 4 проводка пневмосистемы p.36
- 18 регулировка давления воздуха p.37
- 17 проводка воздушного рукава p.37
- 19 установка ограждения иглы p.38
- Внимание p.38
- 20 установка ёмкости под обрезь после ножа p.38
- 21 установка и съём прижимных пластин материала p.39
- Швейная машина должна быть смазана всегда и масло должно пополняться на первых порах эксплуатации и после длительного простоя p.40
- Внимание p.40
- 21 1 добавление масла p.40
- 21 2 смазывание p.41
- Подготовка машины к работе p.43
- Внимание p.43
- 1 установка иглы p.43
- 2 заправка верхней нити p.44
- 3 заправка нижней нити p.45
- Перед её заправкой снять прижимные лапки материала а затем начать заправку точно по схеме что на рисунке внизу закончив заправку нити прижимные лапки установить на место см п 3 19 по снятию и установке лапок p.46
- 4 заправка каркасной нити p.46
- 5 заправка нити когда бобинодержатель установлен с правой стороны p.47
- 6 установка материала p.48
- Эксплуатация машины панель управления основные функции p.49
- 1 наименование и функции клавиш панели управления p.49
- 2 включение машины p.51
- 3 метод установки программы p.52
- Горячие клавиши p.53
- 3 1 список параметров p.54
- Количество стежков в закрепке при окончании строчки p.56
- Величина нахлёстки прямой закрепки p.57
- 4 проверка строчки в режиме тестирования p.59
- Окончание тестового режима подачи p.62
- 5 переключение режима своевременности выполнения прорези p.63
- 6 изменение положения установки материала p.64
- 7 применение режима заправки нити p.65
- Эксплуатация машины получение строчки p.68
- Внимание p.68
- 1 автоматический режим выполнения строчки модуль автоматики p.68
- 2 использование stop выключателя p.69
- 2 1 выполнение паузы при автоматическом режиме работы p.69
- 2 2 отказ от ручного режима при тестовой подаче p.71
- 3 регулировка натяжения нити p.72
- Панель управления дополнительные операции p.74
- 1 применение цикловых программ p.74
- 2 установка запоминания p.78
- 2 1 перечень установок в устройстве памяти p.79
- Если машина как обычно прекращает работу причина может быть в том например что ввод в память был сделан неверно в этом случае можно восстановить обычную операцию посредством выполнения предложенных ниже шагов посредством инициализации памяти p.80
- 3 переустановка значений инициализация p.80
- Перейти в авторежим p.83
- 4 изменения показания счётчика продукции p.83
- 5 дисплей справки p.85
- Внимание p.86
- 6 режим выполнения строчки вручную p.86
- Using the sewing machine operation panel advenced operation p.88
- Конец операции выполненой в ручном режиме p.89
- 7 переключение режима выполнения строчки при включённой машине p.90
- Осмотр и чистка p.91
- Внимание p.91
- 1 ежедневная чистка и осмотр p.91
- 1 1 чистка p.91
- 2 ежемесячная чистка и осмотр p.92
- 2 1 чистка входного тракта блока управления p.92
- 1 3 проверка иглы p.92
- 1 2 проверка воздушного фильтра p.92
- 3 осмотр и чистка при необходимости p.93
- 3 4 удаление воды p.93
- 3 3 смазка p.93
- 3 2 чистка защитного экрана p.93
- 3 1 слив масла p.93
- 1 регулировка положения ширителя и петлителя p.94
- Внимание p.94
- C тандартные регулировки p.94
- 3 ширина зигзаг строчки регулируется в интервале 1 5 4 мм изготовитель устанавливает ширину в 3 мм p.95
- 2 регулировка ширины зигзаг строчки p.95
- Подготовка переделанной короткой иглы p.96
- 3 регулировка положения осевой линии зигзаг строчки p.96
- 4 регулировка взаимодействия иглы и петлителя p.99
- 5 регулировка хода петлителя p.100
- 6 регулировка положения игловодителя по вертикали p.101
- 7 регулировка зазора между иглой и петлителем p.102
- 8 регулировка направителя иглы p.102
- 9 регулировка положения ширителей p.103
- Ширитель r 1 в позиции внутреннее положение и ширитель l в позиции внешнее положение должны касаться упоров соответственно 3 и 4 и останавливаться сразу до прихода игловодителя в крайнее нижнее положение p.104
- 10 регулировка своевременности взаимодействия ширителя p.104
- 11 регулировка положения фигурной пластины по высоте p.105
- 12 изменение длины прорезного отверстия замена ножа p.106
- Длина прорези определяется шириной ножа поэтому при смене длины прорези необходимо заменить нож p.106
- Давление на нож должно быть таким чтобы материал был надрезан чисто заточка по длине кромки должна быть одинаковой p.107
- 13 подготовка режущей кромки ножа p.107
- 13 1 заточка режущей кромки ножа p.107
- 14 регулировка осевого зазора ножа p.108
- 13 2 регулировка контакта между подвижным и неподвижным ножами p.108
- Вал привода механизма прорубания 2 и вал 3 прижимного устройства связаны пружиной растяжения 4 так что держатель ножа 1 можно выставить вручную когда игла находится в глазке петли что уже проверялось при подготовке машины к выполнению строчки если пружина растяжения 4 повреждена или скорость возвращения ножа мала оба вала 2 и 3 надо настроить на движение как единого целого p.109
- 15 настройка совместного движения валов привода механизма прорубания и прижимного устройства p.109
- Внимание p.110
- 16 замена неподвижного ножа p.110
- 16 1 замена ножа p.110
- 16 2 точное позиционирование нижнего ножа p.111
- Нож p.113
- 17 регулировка давления в устройстве прорубания петли p.113
- 18 регулировка величины подъёма прижимов материала p.114
- 19 регулировка положения прижимной лапки p.115
- 20 регулировка положения прижимных пластин p.116
- 21 регулировка ширины прорези p.117
- 22 регулировка подачи верхней нити p.118
- Для того чтобы начальные стежки выглядели нормально необходимо достаточное натяжение нижней нити в течение времени когда верхняя нить выбирается петлителем с глазком на первом стежке до тех пор пока ширитель l не закончит открытия при этом нижняя нить не будет вытянута для обрезки p.119
- 24 замена и регулировка верхнего подвижного ножа p.119
- 24 1 замена верхнего ножа p.119
- 23 регулировка подачи нижней нити только для подкласса 01 p.119
- 24 2 регулировка верхнего подвижного ножа p.120
- Положение иглы должно быть выставлено так чтобы она не задела верхнего ножа когда выполняется строчка максимальной ширины зигзага в режиме внешней строчки p.121
- 24 3 регулировка положения держателя триммера нити p.121
- 25 замена и регулировка подвижного ножа и неподвижного для нижней и каркасной нитей подкласс 01 p.122
- 25 1 замена подвижного и неподвижного ножей p.122
- 25 3 регулировка величины перекрытия p.123
- 25 2 регулировка усилия обрезания нити p.123
- Нижняя нить должна пройти через зажим d 1 а каркасная нить через зажим u 2 поэтому узел закрепления нити 3 должен быть проверен на правильность установки а открыватель 4 зажима на правильность перемещения p.124
- 25 4 регулировка устройства для закрепления и отпускания нити p.124
- 25 5 регулировка передатчика нити p.126
- 26 замена и регулировка подвижного ножа и неподвижного для нижней нити и каркасной подкласс 02 p.127
- 26 2 регулировка усилия резания p.127
- 26 1 замена подвижного и неподвижного ножей p.127
- 26 3 регулировка положения подвижного ножа p.128
- 26 4 регулировка положения устройства дополнительного закрепления p.129
- Коды отказов p.132
- Отключить сеть поставить головку в обычное положение p.132
- Отключить сеть вернуть головку в исходное положени p.132
- Опасно p.132
- Проверить подключение синхронизатора к двигателю на панели компьютера p.133
- Проверить подключение синхронизатора к двигателю главного вала на панели компьютера p.133
- Отключить сеть и проверить контакты подключения синхронизатора к панели компьютера p.133
- Устранение неисправностей p.137
- Внимание p.137
Похожие устройства
-
Brother RH-9820-01/02Каталог запчастей -
Brother HE-800B-03Руководство по эксплуатации -
Brother HE-800B-02Руководство по эксплуатации -
Aurora А-782DИнструкция к блоку управления -
Aurora А-782DИнструкция по эксплуатации -
Aurora А-781DИнструкция к блоку управления -
Aurora А-781DИнструкция по эксплуатации -
Golden Wheel CSH-7830Инструкция по эксплуатации -
Golden Wheel CSH-7820Инструкция по эксплуатации -
Golden Wheel CSH-7800Инструкция по эксплуатации -
Golden Wheel CSH-7800Каталог запчастей -
Aurora A-9820Руководство по эксплуатации
Скачать
Случайные обсуждения