Gigabyte G292-Z42 (rev. 100) [51/155] Slimline sas 2
![Gigabyte G292-Z42 (rev. 100) [51/155] Slimline sas 2](/views2/1680631/page51/bg33.png)
- 51 - System Hardware Installation
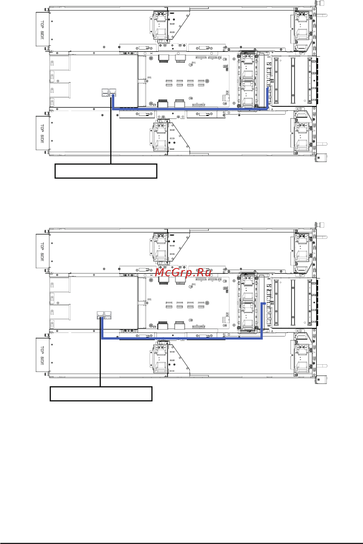
SlimLine SAS #1
MB/Top Tray Connector
SlimLine SAS #2
MB/Top Tray Connector
Содержание
- User manual p.1
- G292 z40 g292 z42 p.1
- For more information p.2
- For gigabyte distributors and resellers additional sales marketing materials are available from our reseller portal at p.2
- For further information technical assistance please contact your gigabyte sales representative you may also message gigabyte server directly by email facebook or twitter p.2
- Email server grp gigabyte com facebook https www facebook com gigabyteserver twitter https twitter com gigabyteserver p.2
- Documentation classifications p.2
- Disclaimer p.2
- Copyright p.2
- 2019 giga byte technology co ltd all rights reserved the trademarks mentioned in this manual are legally registered to their respective owners p.2
- Information in this manual is protected by copyright laws and is the property of gigabyte changes to the specifications and features in this manual may be made by gigabyte without prior notice no part of this manual may be reproduced copied translated transmitted or published in any form or by any means without gigabyte s prior written permission p.2
- In order to assist in the use of this product gigabyte provides the following types of documentation p.2
- Http www gigabyte com p.2
- Http reseller b2b gigabyte com p.2
- Forrelatedproductspecifications thelatestfirmwareandsoftware andrelatedinformation pleasevisit our website at p.2
- The following conventions are used in this user s guide p.3
- Conventions p.3
- Server warnings and cautions p.4
- Electrostatic discharge esd p.5
- Table of contents p.7
- Chapter 5 bios setup 9 p.7
- Chapter 4 motherboard components 5 p.7
- Chapter 3 system hardware installation 3 p.7
- Chapter 2 system appearance 7 p.7
- Chapter 1 hardware installation 1 p.7
- 3 amd cbs menu 95 p.8
- 8 boot menu 127 p.8
- 7 security menu 124 p.8
- 5 chipset setup menu 117 5 6 server management menu 118 p.8
- 4 amd pbs option menu 114 p.8
- 9 save exit menu 133 5 10 abl post codes 134 p.9
- 12 bios post beep code ami standard 155 p.9
- 11 agesa post codes 144 p.9
- Chapter 1 hardware installation p.11
- 1 installation precautions p.11
- 2 product specifications p.12
- 3 system block diagram p.15
- 3 1 g292 z40 p.15
- 3 2 g292 z42 p.16
- No description p.17
- Chapter 2 system appearance p.17
- 1 front view p.17
- No description p.18
- 5 6 7 8 9 10 11 p.18
- 2 rear view p.18
- No name color status description p.19
- 3 front panel buttons and leds p.19
- No name color status description p.20
- 4 rear system lan leds p.20
- 1 3 4 3 4 p.20
- Psu led p.21
- Color status description p.21
- 5 power supply unit psu led p.21
- System appearance 22 p.22
- Led 1 led 2 reserved p.22
- 6 hard disk drive leds p.22
- Chapter 3 system hardware installation p.23
- 1 removing chassis cover p.24
- 2 removing and installing the fan duct p.25
- 3 installing the cpu and heat sink p.26
- This motherboard provides 16 ddr4 memory sockets and supports eight channel technology after the memory is installed the bios will automatically detect the specifications and capacity of the memory enabling four channel memory mode will be four times of the original memory bandwidth p.28
- System hardware installation 28 p.28
- Read the following guidelines before you begin to install the memory make sure that the motherboard supports the memory it is recommended that memory of the same capacity brand speed and chips be used always turn off the computer and unplug the power cord from the power outlet before installing the memory to prevent hardware damage memory modules have a foolproof design a memory module can be installed in only one direction if you are unable to insert the memory switch the direction p.28
- Cpu0 cpu1 p.28
- 4 installing the memory p.28
- 4 1 eight channel memory configuration p.28
- 4 3 dimm population table p.29
- 4 2 installing a memory p.29
- R 1 package rank of sdp drams 2r 2 package rank of sdp drams 2dr 2 package rank of ddp drams 4dr 4 package rank of ddp drams 2s2r 2s4r 2s8r 2 package rank of 2 4 8 high 3ds drams p.30
- Lrdimm maximum frequency supported p.30
- Frequency mt s p.30
- Ds rdimm maximum frequency supported p.30
- Dimms populated p.30
- 2 2933 2666 p.30
- System hardware installation 30 p.30
- S2r 2s4r p.30
- Rdimm maximum frequency supported p.30
- Top gpu7 pcie_4_pcie_1 bottom gpu8 pcie_4_pcie_2 p.31
- Top gpu1 pcie_1_pcie_1 bottom gpu2 pcie_1_pcie_2 p.31
- Front rear p.31
- 5 installing the gpu card p.31
- Top gpu6 pcie_2_pcie_2 bottom gpu5 pcie_2_pcie_1 p.34
- Top gpu4 pcie_3_pcie_2 bottom gpu3 pcie_3_pcie_1 p.34
- Front rear p.34
- 6 installing a pci express card p.36
- 7 installing the hard disk drive p.40
- 8 replacing the fan assembly p.42
- Caution to avoid fan cable damage please make sure the fan cables are firmly seated in the cable routing hooks p.45
- 45 system hardware installation p.45
- 9 replacing the power supply p.46
- System main power p.47
- System fan power p.47
- 10 cable routing p.47
- X 3 power p.48
- Cpu power p.48
- Hdd backplane board signal p.49
- Hdd backplane board power p.49
- Power distribution board to hdd backplane board power p.50
- Slimline sas 2 p.51
- Slimline sas 1 p.51
- Front panel io p.52
- Chapter 4 motherboard components p.55
- 1 motherboard components p.55
- Cpu0 cpu1 p.57
- 57 motherboard components p.57
- 2 jumper setting p.57
- Ncsi switch p.57
- This page intentionally left blank p.58
- Chapter 5 bios setup p.59
- Bios setup program function keys p.59
- Server management p.60
- Security p.60
- Save exit p.60
- Chipset p.60
- Amd pbs option p.60
- Amd cbs p.60
- Advanced p.60
- 1 the main menu p.61
- 2 advanced menu p.64
- 2 1 trusted computing p.65
- 2 2 psp firmware versions p.66
- 2 3 redish host interface settings p.67
- 2 4 legacy video select p.68
- 2 5 ast2500 super io configuration p.69
- 2 6 s5 rtc wake settings p.71
- 2 7 serial port console redirection p.72
- 2 8 cpu configuration p.75
- 2 9 ami graphic output protocol policy p.76
- 2 10 pci subsystem settings p.77
- 2 11 usb configuration p.79
- 2 12 nvme configuration p.81
- 2 13 sata configuration p.82
- 2 14 network stack configuration p.83
- 2 15 amd mem configuration status p.84
- 2 16 iscsi configuration p.85
- 2 17 tls auth configuration p.86
- 2 18 intel r i350 gigabit network connection p.87
- 2 19 vlan configuration p.89
- 2 20 mac ipv4 network configuration p.91
- 2 21 mac ipv6 network configuration p.92
- 2 22 intel r ethernet controller x550 p.93
- 3 amd cbs menu p.95
- 3 1 cpu common options p.96
- 3 2 df common options p.98
- 3 3 umc common options p.101
- 3 4 nbio common options p.104
- 3 5 fch common options p.109
- 3 6 ntb common options p.112
- 3 7 soc miscellaneous control p.113
- 4 amd pbs option menu p.114
- 4 1 ras p.115
- 5 chipset setup menu p.117
- 6 server management menu p.118
- 6 1 system event log p.120
- 6 2 view fru information p.121
- 6 3 bmc network configuration p.122
- 6 4 ipv6 bmc network configuration p.123
- 7 security menu p.124
- 7 1 secure boot p.125
- 8 boot menu p.127
- 8 1 uefi hard disk drive bbs priorities p.129
- 8 2 uefi usb drive bbs priorities p.130
- 8 3 uefi network drive bbs priorities p.131
- 8 4 uefi application boot priorities p.132
- 9 save exit menu p.133
- 10 abl post codes p.134
- 10 3 pmu test points p.134
- 10 2 memory test points p.134
- 10 1 start processor test points p.134
- 10 4 original post code p.135
- 10 7 extended memory test point p.136
- 10 6 topology test points p.136
- 10 5 cpu test points p.136
- 10 8 gnb earlier init p.137
- 10 9 pmu test points p.140
- 10 11 abl5 test points p.140
- 10 10 abl0 test points p.140
- 11 agesa post codes p.144
- 11 2 0xa1xx for cz only memory postcodes p.144
- 11 1 universal post code p.144
- 11 5 0xa5xx assigned for agesa psp module p.147
- 11 4 pmu post code p.147
- 11 3 s3 interface post code p.147
- 11 6 0xa9xx 0xaaxx assigned for agesa nbio module p.150
- 11 7 0xacxx assigned for agesa ccx module p.152
- 11 8 0xadxx assigned for agesa df module p.153
- 11 9 0xafxx assigned for agesa fch module p.153
- 12 bios post beep code ami standard p.155
- 12 2 dxe beep codes p.155
- 12 1 pei beep codes p.155
Похожие устройства
-
Gigabyte S260-NF1 (rev. 100)Руководство пользователя -
Gigabyte R281-T94 (rev. 100)Инструкция -
Gigabyte H261-NO0 (rev. 100)Инструкция -
Gigabyte H261-NO0 (rev. 100)Руководство пользователя GSM Server -
Gigabyte H261-NO0 (rev. 100)Руководство пользователя GSM Agent -
Gigabyte H261-NO0 (rev. 100)Руководство пользователя ErP Mode BIOS Setup -
Gigabyte H261-PC0 (rev. 100)Инструкция -
Gigabyte H261-PC0 (rev. 100)Руководство пользователя GSM Server -
Gigabyte H261-PC0 (rev. 100)Руководство пользователя GSM Agent -
Gigabyte H261-PC0 (rev. 100)Руководство пользователя ErP Mode BIOS Setup -
Gigabyte H261-Z61 (rev. A00)Инструкция -
Gigabyte H261-Z60 (rev. A00)Инструкция