Gigabyte H261-Z60 (rev. A00) [42/130] Node2 node4
![Gigabyte H261-Z60 (rev. A00) [42/130] Node2 node4](/views2/1681270/page42/bg2a.png)
System Hardware Installation - 42 -
7
7
9
9
8
8
10
10
Node1 Node3
12
13
12
13
11
14
12
14
Node2 Node4
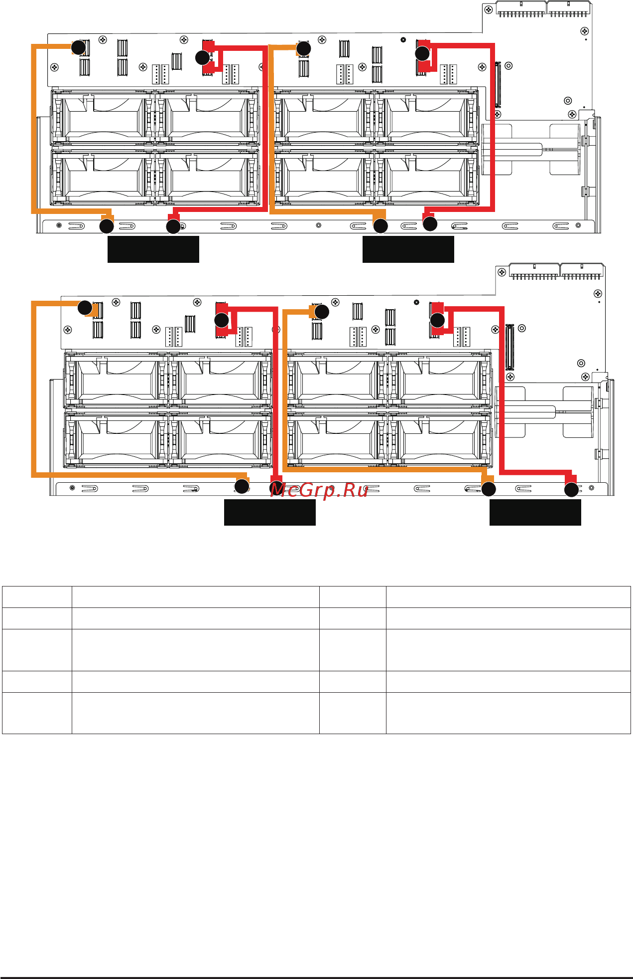
3-13-1 Hard Drive Back Plane Board Cable Routing
No. Suggest Cable No. Suggest Cable
7. SATA cable #0~#3 8. SATA cable #12~#15
9.
NVME SSD cable #4~#5
(Dened by SKU)
10.
NVME SSD cable #16~#17
(Dened by SKU)
11. SATA cable #6~#9 12. SATA cable #18~#21
13.
NVME SSD cable #10~#11
(Dened by SKU)
14.
NVME SSD cable #22~#23
(Dened by SKU)
Содержание
- Information in this manual is protected by copyright laws and is the property of gigabyte changes to the specifications and features in this manual may be made by gigabyte without prior notice no part of this manual may be reproduced copied translated transmitted or published in any form or by any means without gigabyte s prior written permission p.2
- In order to assist in the use of this product gigabyte provides the following types of documentation p.2
- For more information p.2
- Documentation classifications p.2
- Disclaimer p.2
- Copyright p.2
- 2019 giga byte technology co ltd all rights reserved the trademarks mentioned in this manual are legally registered to their respective owners p.2
- The following conventions are used in this user s guide p.3
- Conventions p.3
- Server warnings and cautions p.4
- Electrostatic discharge esd p.5
- Chapter 2 system appearance 9 p.7
- Chapter 1 hardware installation 1 p.7
- Table of contents p.7
- Chapter 4 motherboard components 3 p.7
- Chapter 3 system hardware installation 3 p.7
- Chapter 5 bios setup 5 p.8
- 7 security menu 104 p.8
- 6 server management menu 98 p.8
- 5 chipset setup menu 96 p.8
- 4 amd pbs option menu 93 p.8
- 3 amd cbs menu 80 p.8
- 1 the main menu 47 5 2 advanced menu 49 p.8
- 8 boot menu 107 5 9 save exit menu 109 5 10 abl post codes 110 p.9
- 11 agesa post codes 120 p.9
- This page intentionally left blank p.10
- Chapter 1 hardware installation p.11
- 1 installation precautions p.11
- 2 product specifications p.12
- 3 system block diagram p.17
- Thispageintentionallyleftblank p.18
- Node 1 node 2 node 3 node 4 p.19
- Chapter 2 system appearance p.19
- 2 rear view p.19
- 1 front view p.19
- No name color status description p.20
- 3 front panel led and buttons p.20
- 4 rear system lan leds p.21
- 2 1 2 2 1 p.21
- System appearance 22 p.22
- Note 1 depends on hba utility spec 2 blink cycle depends on hdd s activity signal 3 if hdd is pulled out during rebuilding the disk status of this hdd is regarded as faulty p.22
- Led 2 hdd present no hdd p.22
- Green on off p.22
- 5 hard disk drive leds p.22
- Chapter 3 system hardware installation p.23
- 1 installing the hard disk drive p.24
- 2 removing the node p.25
- 3 removing chassis cover p.26
- 4 removing and installing the fan duct p.27
- Warning cpu0 and cpu1 use different cpu heatsinks see the following images for using the correct heatsink failure to observe the warning could result in damage to the equipment p.28
- Primary cpu heatsink p.28
- 5 removing and installing the heatsink p.28
- Secondary cpu heatsink p.29
- Primary cpu heatsink secondary cpu heatsink p.29
- 6 installing the cpu p.30
- Read the following guidelines before you begin to install the memory make sure that the motherboard supports the memory it is recommended that memory of the same capacity brand speed and chips be used always turn off the computer and unplug the power cord from the power outlet before installing the memory to prevent hardware damage memory modules have a foolproof design a memory module can be installed in only one direction if you are unable to insert the memory switch the direction p.31
- Cpu1 secondary p.31
- Cpu0 primary p.31
- 7 installing memory p.31
- 7 1 eight channel memory configuration p.31
- 31 system hardware installation p.31
- This motherboard provides 16 ddr4 memory sockets and supports eight channel technology after the memory is installed the bios will automatically detect the specifications and capacity of the memory enabling eight channel memory mode will be eight times of the original memory bandwidth p.31
- 8 installing the pci expansion card p.34
- 9 installing the ocp card p.36
- 10 replacing the fan assembly p.37
- Secondary psu p.38
- Primary psu p.38
- 11 replacing the power supply p.38
- Power supply led p.39
- 39 system hardware installation p.39
- 11 1 power supply led behavior p.39
- 12 replacing power distribution board cage p.40
- 13 cable routing p.41
- Node2 node4 p.42
- Node1 node3 p.42
- 13 1 hard drive back plane board cable routing p.42
- 1 motherboard components p.43
- Chapter 4 motherboard components p.43
- Motherboard components 44 p.44
- 2 jumper setting p.44
- Chapter 5 bios setup p.45
- Bios setup program function keys p.45
- Server management p.46
- Security p.46
- Save exit p.46
- Chipset p.46
- Amd pbs option p.46
- Amd cbs p.46
- Advanced p.46
- 1 the main menu p.47
- 2 advanced menu p.49
- 2 1 trusted computing p.50
- 2 2 psp firmware versions p.51
- 2 3 legacy video select p.52
- 2 4 ast2500 super io configuration p.53
- 2 4 1 serial port 1 2 configuration p.54
- 2 5 s5 rtc wake settings p.56
- 2 6 serial port console redirection p.57
- 2 7 cpu configuration p.59
- 2 7 1 cpu 0 information p.60
- 2 7 2 cpu 1 information p.61
- 2 8 pci subsystem p.62
- 2 9 usb configuration p.64
- 2 10 nvme configuration p.66
- 2 11 sata configuration p.67
- 2 12 network stack p.68
- 2 13 amd mem configuration status p.69
- 2 14 iscsi configuration p.70
- 2 15 tls auth configuration p.71
- 2 16 avago megaraid configuration utility p.72
- 2 17 intel r i350 gigabit network connection p.74
- 2 18 vlan configuration p.76
- 2 19 mac ipv4 network configuration p.78
- 2 20 mac ipv6 network configuration p.79
- 3 amd cbs menu p.80
- 3 1 valhalla common options p.81
- 3 2 df common options p.83
- 3 3 umc common options p.84
- 3 3 1 ddr4 common options p.85
- 3 3 2 dram memory mapping p.86
- 3 3 3 nvdimm p.87
- 3 3 4 memory mbist p.88
- 3 4 nbio common options p.89
- 3 5 fch common options p.90
- 3 6 ntb common options p.91
- 3 7 soc miscellaneous control p.92
- 4 amd pbs option menu p.93
- 4 1 ras p.94
- 5 chipset setup menu p.96
- 5 1 north bridge p.97
- 6 server management menu p.98
- 6 1 system event log p.100
- 6 2 view fru information p.101
- 6 3 bmc network configuration p.102
- 6 4 ipv6 bmc network configuration p.103
- 7 security menu p.104
- 7 1 secure boot p.105
- 8 boot menu p.107
- 9 save exit menu p.109
- 10 2 memory test points p.110
- 10 1 startprocessortestpoints p.110
- 10 abl post codes p.110
- 10 3 pmu test points p.110
- 10 4 original post code p.111
- 10 7 extended memory test point p.112
- 10 6 topology test points p.112
- 10 5 cpu test points p.112
- 10 8 gnb earlier init p.113
- 10 9 pmu test points p.116
- 10 11 abl5 test points p.116
- 10 10 abl0 test points p.116
- 11 agesa post codes p.120
- 11 2 0xa1xx for cz only memory postcodes p.120
- 11 1 universal post code p.120
- 11 5 0xa5xx assigned for agesa psp module p.123
- 11 4 pmu post code p.123
- 11 3 s3 interface post code p.123
- 11 6 0xa9xx 0xaaxx assigned for agesa nbio module p.126
- 11 7 0xacxx assigned for agesa ccx module p.128
- 11 9 0xafxx assigned for agesa fch module p.129
- 11 8 0xadxx assigned for agesa df module p.129
Похожие устройства
-
Gigabyte S260-NF1 (rev. 100)Руководство пользователя -
Gigabyte R281-T94 (rev. 100)Инструкция -
Gigabyte H261-NO0 (rev. 100)Инструкция -
Gigabyte H261-NO0 (rev. 100)Руководство пользователя GSM Server -
Gigabyte H261-NO0 (rev. 100)Руководство пользователя GSM Agent -
Gigabyte H261-NO0 (rev. 100)Руководство пользователя ErP Mode BIOS Setup -
Gigabyte H261-PC0 (rev. 100)Инструкция -
Gigabyte H261-PC0 (rev. 100)Руководство пользователя GSM Server -
Gigabyte H261-PC0 (rev. 100)Руководство пользователя GSM Agent -
Gigabyte H261-PC0 (rev. 100)Руководство пользователя ErP Mode BIOS Setup -
Gigabyte H261-Z61 (rev. A00)Инструкция -
Gigabyte H261-Z60 (rev. A00)Руководство пользователя GSM Server