DoorHan RSD02 Чертеж - RSD02, высокий подъем с двойным изгибом направляющих, формирование проема онлайн

*Размеры для справок.
B
H
100 *
>= B/2-50*
размер зависит от
длины пружины
А
А
А-А (1:2)
Б Б
Б-Б (1:2)
1
Помещение
100*
100*
ГОСТ 5264-80 4
ГОСТ 5264-80 4
100* 100*
100*
100*
ГОСТ 5264-80 4
ГОСТ 5264-80 4
Закладной элемент
100* 100*
3
2
3
1
ГОСТ 5264-80 4
h
2
Масса Масштаб
Изм.
Лист
№ докум. Подп.
Дата
Лит.
Разраб.
Пров.
Т.контр. Лист Листов
Н.контр.
Утв.
Б/М
1
Формирование проема
высокий подъем
с двойным изгиб направляющих
(Бытовые ворота)
VSB-09.01
Согласован
Инв. № подл. Подп. и дата Взам. инв. № Инв. № дубл. Подп. и дата Справ. № Перв. примен.
VSB-09.01
Копировал Формат A2
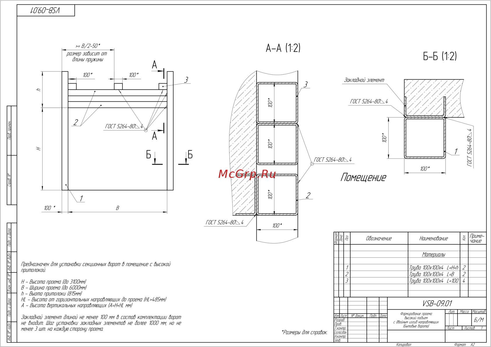
Предназначен для установки секционных ворот в помещение с высокой
притолокой.
H - Высота проема (до 3100мм)
B - Ширина проема (до 6000мм)
h - Выота притолоки (815мм)
HL - Высота от горизонтальных направляющих до проема (HL>485мм)
А - Высота вертикальных направляющих (A=H+HL мм)
Закладной элемент длиной не менее 100 мм в состав комплектации ворот
не входит. Шаг установки закладных элементов не более 1000 мм, но не
менее 3 шт. на каждую сторону проема.
Материалы
1 Труба 100х100х4 L=H+h 2
2 Труба 100х100х4 L=B 2
3 Труба 100х100х4 L=100 4
Формат
Зона
Поз.
Обозначение Наименование
Кол.
Приме-
чание
Содержание
Похожие устройства
-
DoorHan ISD02Инструкция по эксплуатации -
DoorHan ISD01Инструкция по эксплуатации -
DoorHan RSD02Инструкция по монтажу и эксплуатации -
DoorHan RSD02Чертеж - RSD02, вертикальный подъем, окантовка проема -
DoorHan RSD02Чертеж - RSD02, вертикальный подъем, формирование проема -
DoorHan RSD02Чертеж - RSD02, вертикальный подъем -
DoorHan RSD02Чертеж - RSD02, высокий наклонный подъем, окантовка проема -
DoorHan RSD02Чертеж - RSD02, высокий наклонный подъем, формирование проема -
DoorHan RSD02Чертеж - RSD02, высокий наклонный подъем -
DoorHan RSD02Чертеж - RSD02, высокий подъем с двойным изгибом направляющих, окантовка проема -
DoorHan RSD02Чертеж - RSD02, высокий подъем с двойным изгибом направляющих -
DoorHan RSD02Чертеж - RSD02, высокий подъем, окантовка проема