DoorHan RSD02 чертеж - RSD02, низкий подъем, комплекты направляющих RKTN, формирование проема. онлайн

*Размеры для справок.
B
H
100 *
А
А
А-А (1:2)
Б Б
Б-Б (1:2)
1
Помещение
100*
100*
ГОСТ 5264-80 4
100*
100*
ГОСТ 5264-80 4
ГОСТ 5264-80 4
Закладной элемент
2
1
ГОСТ 5264-80 4
h
2
Масса Масштаб
Изм.
Лист
№ докум. Подп.
Дата
Лит.
Разраб.
Пров.
Т.контр. Лист Листов
Н.контр.
Утв.
Б/М
1
Формирование проема
низкий подъем
RKTN (Бытовые ворота)
VSB-01.01R
Согласован
Инв. № подл. Подп. и дата Взам. инв. № Инв. № дубл. Подп. и дата Справ. № Перв. примен.
VSB-01.01R
Копировал Формат A2
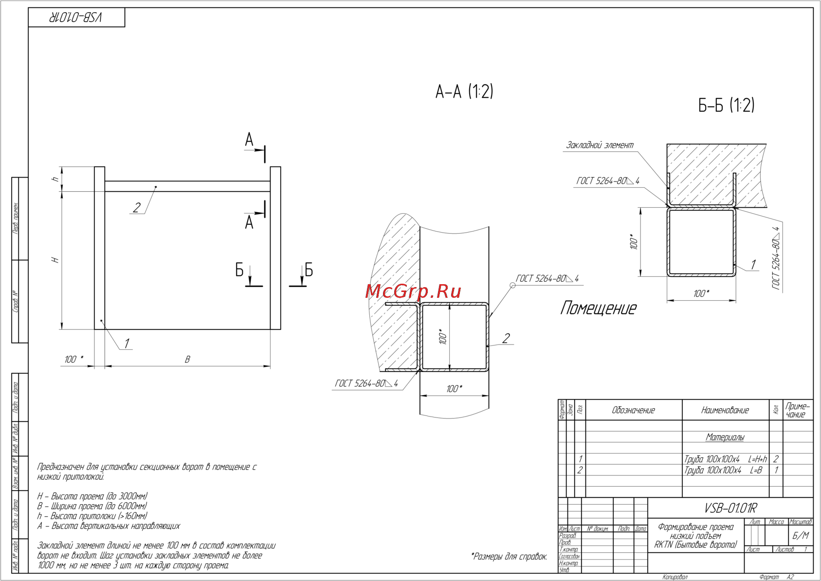
Предназначен для установки секционных ворот в помещение с
низкой притолокой.
H - Высота проема (до 3000мм)
B - Ширина проема (до 6000мм)
h - Выcота притолоки (>160мм)
А - Высота вертикальных направляющих
Закладной элемент длиной не менее 100 мм в состав комплектации
ворот не входит. Шаг установки закладных элементов не более
1000 мм, но не менее 3 шт. на каждую сторону проема.
Материалы
1
Труба 100х100х4 L=H+h
2
2 Труба 100х100х4 L=B 1
Формат
Зона
Поз.
Обозначение Наименование
Кол.
Приме-
чание
Содержание
Похожие устройства
- DoorHan RSD02 Чертеж - RSD02, низкий подъем, комплекты направляющих RKTN, окантовка проема.
- DoorHan RSD02 чертеж - RSD02, низкий подъем, барабан сзади.
- DoorHan RSD02 Чертеж - RSD02, низкий подъем, барабан сзади, формирование проема
- DoorHan RSD02 Чертеж - RSD02, низкий подъем, барабан сзади, окантовка проема
- DoorHan RSD02 Чертеж - RSD02, высокий подъем
- DoorHan RSD02 Чертеж - RSD02, высокий подъем, формирование проема
- DoorHan RSD02 Чертеж - RSD02, высокий подъем, окантовка проема
- DoorHan RSD02 Чертеж - RSD02, высокий подъем с двойным изгибом направляющих
- DoorHan RSD02 Чертеж - RSD02, высокий подъем с двойным изгибом направляющих, формирование проема
- DoorHan RSD02 Чертеж - RSD02, высокий подъем с двойным изгибом направляющих, окантовка проема
- DoorHan RSD02 Чертеж - RSD02, высокий наклонный подъем
- DoorHan RSD02 Чертеж - RSD02, высокий наклонный подъем, формирование проема
- DoorHan RSD02 Чертеж - RSD02, высокий наклонный подъем, окантовка проема
- DoorHan RSD02 Чертеж - RSD02, вертикальный подъем
- DoorHan RSD02 Чертеж - RSD02, вертикальный подъем, формирование проема
- DoorHan RSD02 Чертеж - RSD02, вертикальный подъем, окантовка проема
- DoorHan RSD02 Инструкция по монтажу и эксплуатации
- DoorHan Сдвижные ворота Чертеж - Фрагменты
- DoorHan Сдвижные ворота Чертеж - Ворота сдвижные для проемов высотой до 3 м
- DoorHan Сдвижные ворота Чертеж - Ворота сдвижные (общий вид)